45-47 Napier Street, Footscray
Development
Prominent Corner Site - Activity Centre Zone
This exceptional corner site is located just a short stroll away from Footscray train station and Maribyrnong River, and boasts prominent main road exposure, presenting a wealth of opportunities.
Current approved town planning permit for the construction of a 6 level mixed use development comprising of 12 x residential apartments and 1 office/retail space on the ground floor.. **PDF copies of plans available upon request**
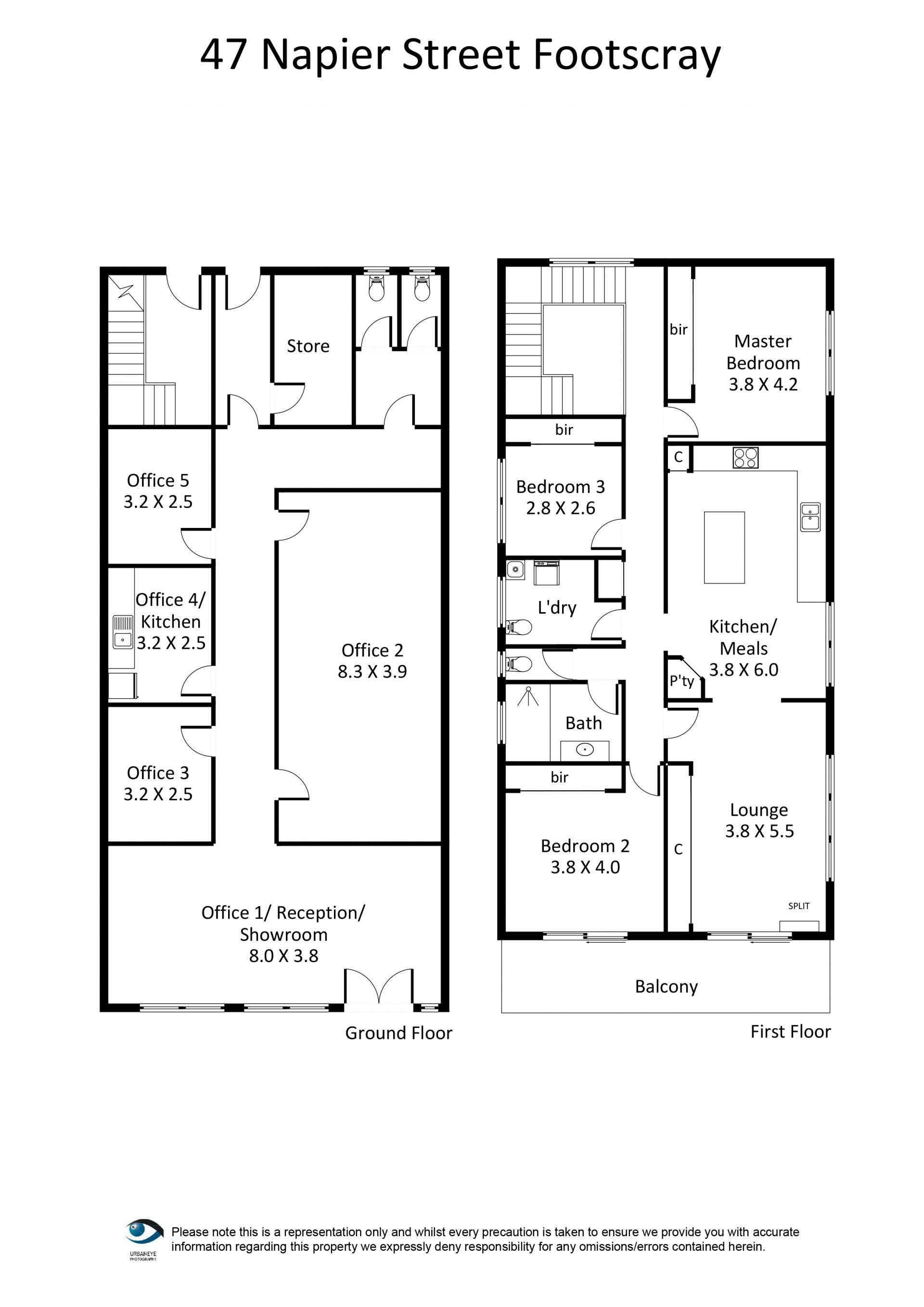
The existing property comprises of two buildings on a single title, each with its own entrance, featuring 1 x retail shop and 2 x residential units currently leased for $20,856 and $18,252 respectively.
The existing ground floor retail space is vacant and currently advertised for lease at $35,000 per annum - combined total potential return - approximately $73,000 per annum.
A superb opportunity to secure a top-quality property just minutes away from the CBD (Docklands is approximately 2.5km away).
Key features include:
Only 300m* away from Footscray Station
Land Size: 316m2*
Two street frontages - Napier Street/Cowper Street
*approx.
DOUGLAS KAY REAL ESTATE
280 HAMPSHIRE ROAD,
SUNSHINE, VIC, 3020
Current approved town planning permit for the construction of a 6 level mixed use development comprising of 12 x residential apartments and 1 office/retail space on the ground floor.. **PDF copies of plans available upon request**
The existing property comprises of two buildings on a single title, each with its own entrance, featuring 1 x retail shop and 2 x residential units currently leased for $20,856 and $18,252 respectively.
The existing ground floor retail space is vacant and currently advertised for lease at $35,000 per annum - combined total potential return - approximately $73,000 per annum.
A superb opportunity to secure a top-quality property just minutes away from the CBD (Docklands is approximately 2.5km away).
Key features include:
Only 300m* away from Footscray Station
Land Size: 316m2*
Two street frontages - Napier Street/Cowper Street
*approx.
DOUGLAS KAY REAL ESTATE
280 HAMPSHIRE ROAD,
SUNSHINE, VIC, 3020
