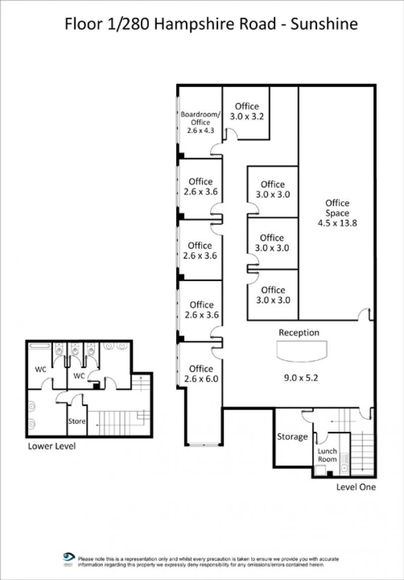
1st Floor/280 Hampshire Road, Sunshine
Offices
High Profile 1st Floor Office.
-Approximately 250m2.
-Positioned in Sunshine's high activity centre.
-Close to the new $50M Brimbank civic centre.
-Only 200m from the new Sunshine Railway station and transport interchange.
-Positioned in Sunshine's high activity centre.
-Close to the new $50M Brimbank civic centre.
-Only 200m from the new Sunshine Railway station and transport interchange.
