66 Parsons Street, Sunshine
House
UNDER APPLICATION - Great Home in a Great Location - Matthews Hill
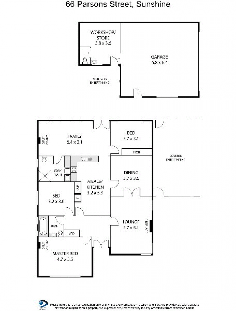
This property has all the "I wants in a home" large bedrooms, formal lounge with open fire place, separate dining room, updated kitchen, family/rumpus room and central bathroom.
FEATURES INCLUDE. Polished timber floors, gas ducted heating, split system air-condition.
Externally. Large enclosed entertaining/barbeque area, undercover alfresco, work shop and double garage.
FEATURES INCLUDE. Polished timber floors, gas ducted heating, split system air-condition.
Externally. Large enclosed entertaining/barbeque area, undercover alfresco, work shop and double garage.
